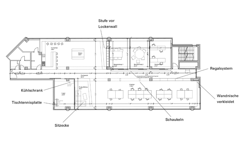
Hier könnt Ihr einige Einblicke in die Planung und Verwirklichung unseres Inkubators bekommen. Wir wünschen viel Spaß!
CIB AI ChatBot
Este website utiliza cookies para que possamos proporcionar ao utilizador a melhor experiência possível. A informação dos cookies é armazenada no seu browser e desempenha funções como reconhecê-lo quando regressa ao nosso site ou ajudar a nossa equipa a compreender quais as partes do site que considera mais interessantes e úteis.
Os cookies estritamente necessários devem estar sempre activados para que possamos guardar as suas preferências de configuração de cookies.
Este sítio Web utiliza o Google Analytics para recolher informações anónimas, como o número de visitantes do sítio ou as páginas mais populares.
Deixar este cookie activo permite-nos melhorar o nosso sítio Web.